Skip to main content

The Granary

Hero image

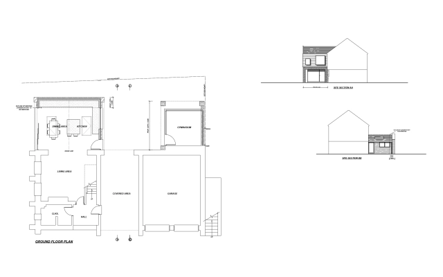
Development Within Historic Areas

Set within a historically significant context, this project reimagines an old granary as a contemporary family home. The proposals respect the building’s agricultural origins, with new extensions carefully designed to complement the existing structure rather than compete with it. The result is a thoughtful dialogue between old and new, enhancing the building’s long-term use while preserving its heritage value.

1
3

Granary

Book A Consultation