Skip to main content

Project in Kenley

Project in Kenley

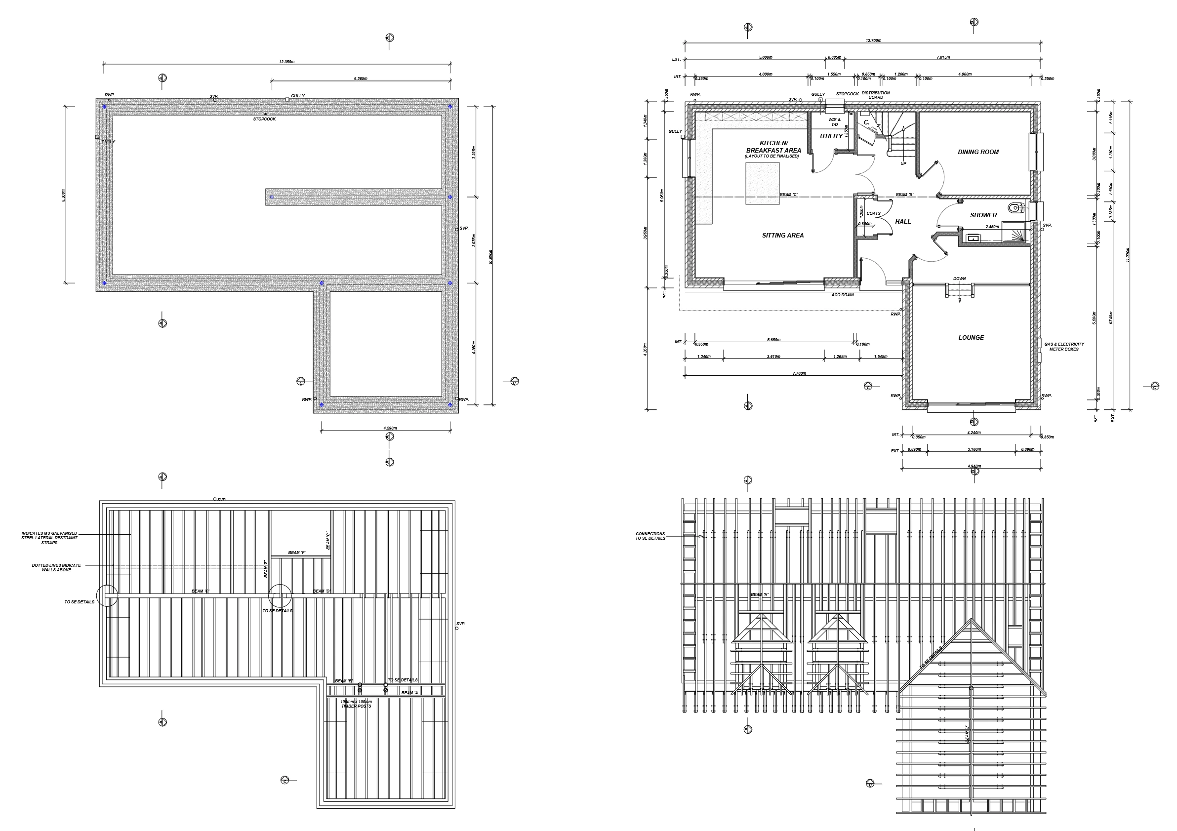
New Development Within an Urban Area

Set within a tightly constrained urban plot, this new detached dwelling responds carefully to its context through a compact and considered architectural strategy. The design balances privacy, daylight and spatial generosity, negotiating restrictive site conditions while maintaining a clear architectural identity. Material choices and massing are calibrated to sit comfortably within the surrounding streetscape, delivering a contemporary home that is both discreet and confident in its urban setting.

1
2

Book A Consultation